Add Row
Add Element
chambers first class connections kc
update

Explore JOCO Businesses
​​​​​​​and Home Improvement Contractors

update
Add Element
  • Home
  • Olathe Home Services
    • Lawn and Landscape
    • Tree Care
    • Kitchen Remodel
    • Outdoor Gardens
    • Home Remodel
    • Handy Man
    • Grilling Outdoors
    • Pools and Outdoors
    • Deck Remodeling
    • Basement Remodeling
    • Water & Ai Purification
    • Outdoor Kitchens
  • Restaurants For Contractors
  • Business Directory
  • Local Reviews
  • Work Wear
  • Homeowner Tips
  • Relocate 2 Kansas City
  • Celebrity Stories
  • Auto Storys
  • Business Directory
  • Home Tips
October 17.2025
2 Minutes Read

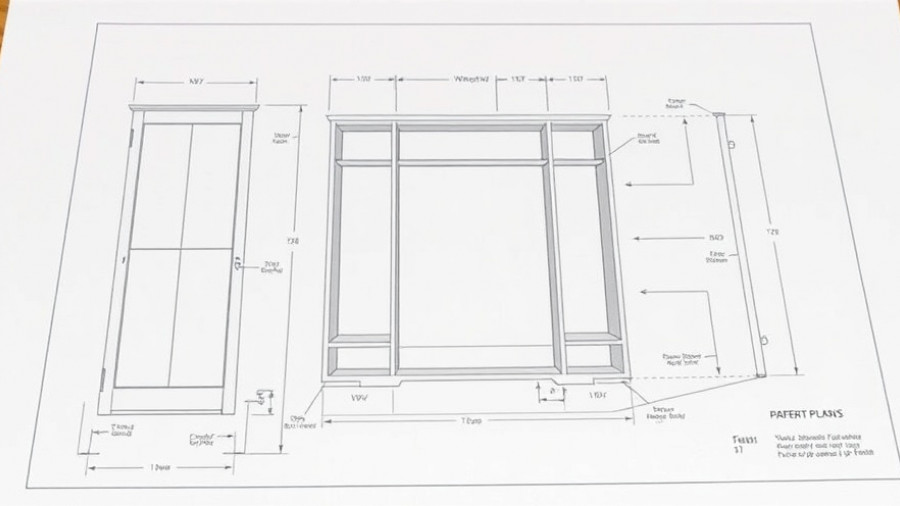
Transform Your Home with a Custom Entryway Hall Tree

DIY entryway hall tree schematic with labeled measurements and parts.

Why a Hall Tree is Essential for Your Entryway

First Impressions Matter: Your entryway is the first space guests see and can set the tone for your entire home. A beautifully designed hall tree not only organizes the chaos of shoes, coats, and bags but also enhances the aesthetic appeal of your foyer.

Function Meets Style: A well-built hall tree, like the one we’re discussing, blends beautifully into modern, transitional, or farmhouse decor. Not only does it offer storage, but it also serves as a decorative feature that welcomes guests into your home.

Building Your Dream Hall Tree Step-by-Step

Embarking on a DIY project like a hall tree may feel daunting, but breaking it down into manageable pieces helps. Insights from our reference sources highlight some key construction methods. Here’s a straightforward approach:

1. Plan Your Design: Measure your entryway and sketch out your design. Think about the materials—plywood is a sturdy choice for the main structure, whereas solid wood adds elegance.

2. Gather Your Materials: According to the Kreg Tool article, a modern hall tree requires a mix of plywood, decorative trim, hooks, and appropriate fasteners. Don’t forget about wood glue, caulk, and paint for that polished look.

3. Construct the Bench: Build a sturdy bench base that can withstand daily use. The Dunhill Homes guide suggests framing your bench with pine boards for strength and practicality, and leaving space underneath for storage baskets.

4. Assemble the Back Panel: This is where you can add visual interest. Kreg advocates using backing materials that can be customized—such as shiplap or beadboard—to bring warmth and texture.

5. Add Hooks and Shelves: Once your main structure is in place, install hooks at a comfortable height for coats, bags, or hats. A top shelf gives you the option to display decorative items or seasonal accents.

Finishing Touches: Enhance Your Hall Tree

The final stage involves trim and paint. Crown molding adds sophistication, while your choice of paint color can dramatically affect your hall tree's impact. Whether you opt for a classic white or a bold navy, finish it off with wood filler and caulk for seamless edges.

Customizing Your Hall Tree for Practicality

Need more organization? Personalizing your hall tree is straightforward. As noted in the Dunhill Homes article, adding cubbies or drawers can help house more items neatly. Think about how you use your entryway to design the best solution for your home.

Be Inspired: As you embark on this project, keep in mind the joy and functionality such a piece can bring to your daily routine. Enjoy the process, and don't hesitate to display your finished work!

Ready to build the stylish and functional hall tree you've always wanted? Grab your tools, gather your materials, and take that first step towards transforming your entryway!

Home Remodel

Write A Comment

*
*
Related Posts All Posts

Is Your Indoor Garden Struggling? 7 Signs You Need a Grow Light

Update Understanding the Need for Grow Lights As winter approaches, homeowners often find their beloved houseplants struggling to thrive within the confines of their indoor environments. While natural light is abundant during summer, it dwindles significantly during the colder months, leaving plants less than satisfied. Identifying the signs that your plants need additional light can make a significant difference in their health and vibrancy. Signs Your Plants Are Asking for Help Here are some key indicators that may suggest your plants could benefit from a grow light: Leggy Growth: If your plants appear tall and spindly, this is a clear sign they are stretching towards the light source. Providing supplemental lighting can correct their growth direction. Yellowing Leaves: A common symptom of insufficient light is yellowing leaves, as plants fail to photosynthesize effectively in low-light conditions. Slow Growth: If your plants aren’t producing new leaves or blooms as they should, a lack of adequate light could be the culprit. Leaf Drop: If leaves are starting to drop, this can indicate stress due to insufficient lighting. Unusual Leaf Coloration: Some plants may show signs of stress through abnormal color changes, such as deep green leaves becoming pale or losing their vibrant hues. Pests and Disease: Weak plants are more susceptible to pests and disease, which thrive when the plant isn’t at its best. Wilting or Drooping: When plants wilt, the lack of energy from photosynthesis can cause them to droop and lose structural integrity. Making the Right Choice for Your Indoor Garden Investing in a grow light can significantly enhance the condition of your indoor plants. With various types available, from LED panels to fluorescent tubes, it’s essential to choose one that suits your specific plant needs. LED grow lights, for instance, are energy-efficient and have a long lifespan, making them a popular choice among indoor gardeners. Practical Insights for Homeowners If you’re a homeowner who enjoys cultivating indoor plants, knowing how to identify and address their light requirements can make your indoor garden flourish. Moreover, understanding the balance between both natural and artificial lighting is key to maintaining a healthy balance in your home garden. As you observe your plants in the coming months, take note of their growth patterns and how they respond to light changes. The right grow light can turn your indoor garden into a thriving sanctuary. Conclusion: Brighten Up Your Indoor Gardening Don’t let your indoor plants suffer during the darker months. If you notice any signs indicating they are not receiving sufficient light, consider securing a quality grow light. Your plants will thrive, and you’ll enjoy a vibrant, flourishing indoor garden. If you’re ready to elevate your indoor gardening game, explore your options for grow lights today, and watch your houseplants thrive even during the winter months.

2025 Car Recalls: Why Ford Leads the Pack in Safety Alerts

Update Unveiling the Most Recalls: The 2025 Car Safety Landscape The automotive industry has faced a wave of challenges in 2025, where safety recalls became a topic of significant concern. As millions of cars hit the roads, knowing which models come with the most recalls can empower consumers to make informed decisions. According to the National Highway Traffic Safety Administration (NHTSA), Ford took the lead in recalls with a staggering 153 incidents affecting almost 13 million vehicles. Let’s delve into the details of the most recalled brands and understand the implications for potential car buyers. Ford's Recall Dominance: A Closer Look Ford's number of recalls was not just a random spike; it marked an alarming trend. The NHTSA's findings reveal a breakdown of these recalls, with 27 due to electrical issues being the most prevalent. Other recalls included various safety concerns related to powertrain failures, visibility issues, and even seatbelt malfunctions. While recalls can range from minor fixes to significant safety hazards, it’s crucial for buyers to stay informed, as 19 recalls issued warnings like 'Do Not Drive' and 16 mandated 'Park Outside.' Examining Other Major Players Following Ford in the recall race were manufacturers such as Chrysler and General Motors, which had 53 and 28 recalls, respectively. These numbers might seem moderate compared to Ford's but still indicate quality control issues within these companies. Notably, automakers like Volkswagen and Honda also made the list, highlighting a concerning pattern across the industry. For homeowners and parents looking for safe vehicles, this information is invaluable. The Impact of Recalls on Consumers Recalls aren't just inconveniences; they can significantly impact the safety of vehicles on the road. The clear emphasis on Ford's electrical and braking systems raises critical questions about consumer confidence. With more than 445 combined recalls among the top manufacturers, prospective car buyers have the right to be apprehensive. Recognizing which brands have a history of recalls allows consumers to weigh their choices effectively and prioritize their family's safety. A Practical Approach for Vehicle Shopping If you’re considering a new car, checking a vehicle’s recall history is essential. The NHTSA offers an accessible platform where you can input specific vehicle information (like VIN) to find any outstanding recalls. This proactive step not only safeguards your investment but could potentially prevent dangerous situations down the line. Encouraging Change in the Auto Industry As the automotive industry continues to adapt, companies are becoming more transparent about safety and recall information. Increased regulatory scrutiny following significant fines has prompted many manufacturers, including Ford, to enhance their quality control processes. In response to past criticisms and legal challenges, there's a growing focus on safety, which hopefully signals a shift towards better practices in the future. What to Watch for in Upcoming Years As we move beyond 2025, it will be interesting to observe how car manufacturers adjust their strategies concerning recalls and quality assurances. Watch for increased investment in technology that ensures more thorough testing and better safety measures. For consumers, being aware of these changes and trends can lead to smarter decisions, especially when investing in family vehicles. Understanding recalls not only raises awareness about the safety of your current vehicle but ensures that when you're in the market for a new car, you will be equipped to make better choices. If you’d like to explore more about which brands hold the highest recall rates and what that means for you, visiting the NHTSA website might provide further insight.

Ford Tops 2025 Recall List: What Safety Alerts Mean for Buyers

Update Understanding the Landscape of Recalls in 2025 The realm of automotive safety is under constant scrutiny, and the recalls of 2025 serve as a critical indicator of brand reliability. With millions of vehicles recalled last year, the data from the National Highway Traffic Safety Administration (NHTSA) offers valuable insights for prospective car buyers. Knowledge of recall trends is vital for making informed decisions, especially when considering the safety of your family on the road. Ford: Leading the Recall Count Dominating the recall landscape, Ford topped the charts in 2025 with a staggering 153 recalls, accounting for a significant 34% of all major recalls among the top 12 brands. This alarming figure translates to nearly 13 million vehicles impacted, primarily due to various electrical and safety issues. The range of problems included: Electrical issues (27 recalls) Back over prevention problems (19 recalls) Power train issues (16 recalls) Service brake failures (11 recalls) Visibility problems (10 recalls) This weighty number of recalls raises essential questions about Ford's quality control and operational processes. It's crucial for consumers to be aware; even renowned brands are not immune to quality challenges. Insights from Recent Trends Interestingly, Ford's massive amounts of recalls did not occur in a vacuum. Other brands like Toyota and Stellantis also reported significant figures, but Ford's recalls dwarfed their totals—Toyota only recorded around 3.2 million vehicles recalled. This disparity can reflect not only the size of the issues reported but also the effectiveness with which these manufacturers address potential defects. What Do Recalls Really Mean? While some may perceive numerous recalls as a red flag for reliability, they can also indicate a proactive approach to safety. For instance, many of Ford's recalls were triggered by issues like malfunctioning backup cameras—problems that, while frustrating, may not present an immediate danger to drivers. It’s vital for consumers to recognize that recalls are an essential part of maintaining road safety; they serve to correct potential errors that could escalate into serious problems. Navigating Your Purchase Decision As consumers consider purchasing a new vehicle, understanding recalls can transform the shopping experience. Here are some actionable tips: Research a brand's recall history: Use resources like the NHTSA to investigate past safety alerts. Understand what issues have been reported: Know if the recalls pertain to significant risks or minor inconveniences. Consider expert reviews: Read expert analysis to get a balanced view of a brand's reliability. With this knowledge, you can empower yourself amidst the sea of choices in the automotive market. Staying informed about recalls allows you to make a safer, smarter decision for your family's transportation needs. Final Thoughts In the ever-evolving automotive sector, past recalls serve as breadcrumbs leading us to the future. By staying informed about which brands are facing issues, consumers can vote with their wallets and support manufacturers that prioritize quality and safety. Remember, buying a car is not just about the vehicle—it's about ensuring peace of mind for you and your loved ones on every journey.

Terms of Service

Privacy Policy

Core Modal Title

Sorry, no results found

You Might Find These Articles Interesting

T
Please Check Your Email
We Will Be Following Up Shortly
*
*
*